Bent Hall
Professional Project • Queens NY • 2015-2018 • CannonDesign
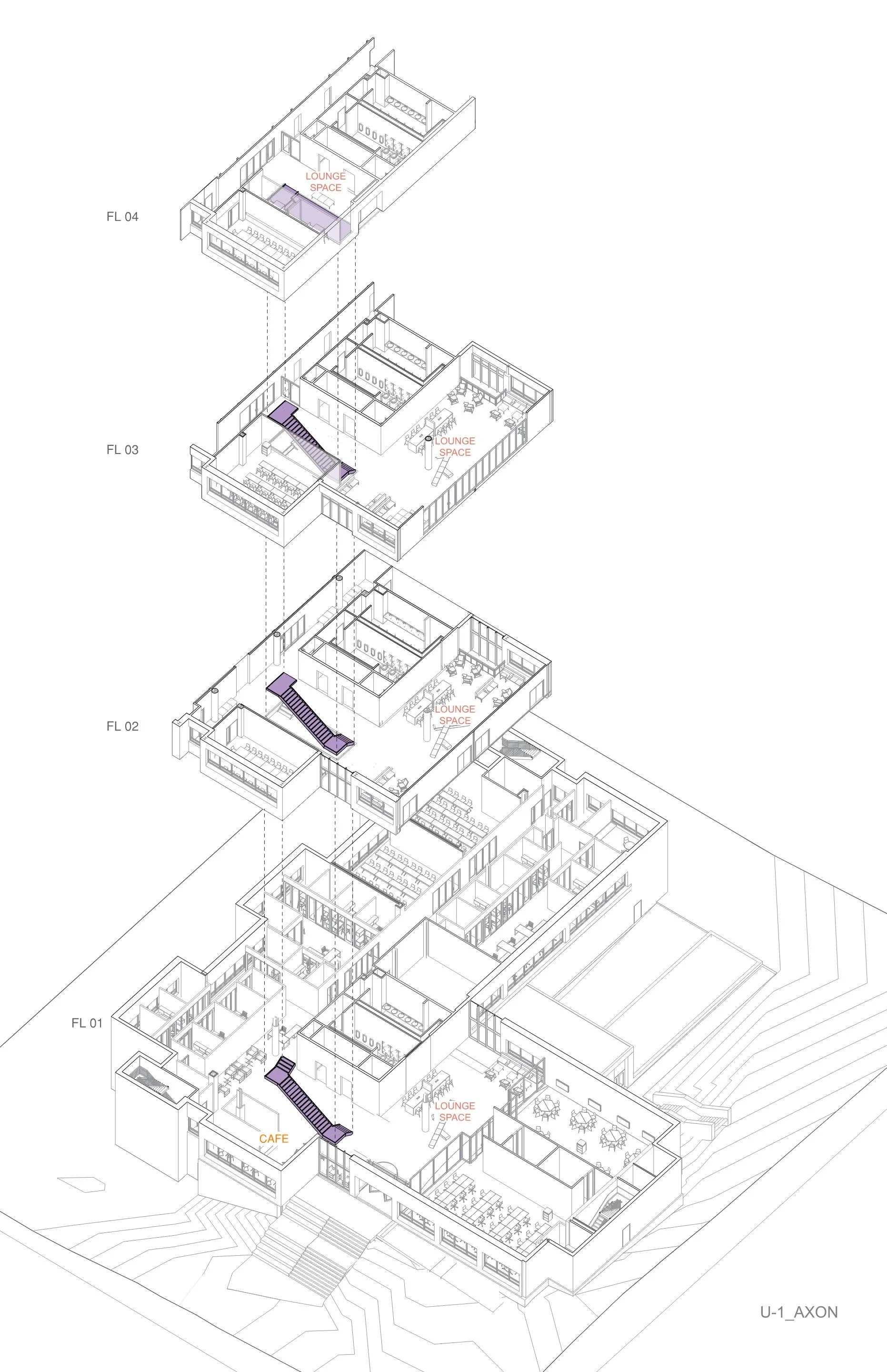
A complete reimagining of St. John’s University’s Bent Hall results in a modern and light-filled new home for the Peter J Tobin College of Business.
Role: Project Designer, Construction Admin Support
Photos ©CannonDesign
